产品展示

Product Display

联系我们

Contact Us

联系人:陆经理

手机:15105515116

网址:sunmiro.com

地址:安徽省芜湖市三山区临江工业园区(夏家湖路1号)

粮食干燥设备

当前位置:首页 > 产品展示 > 粮食干燥设备

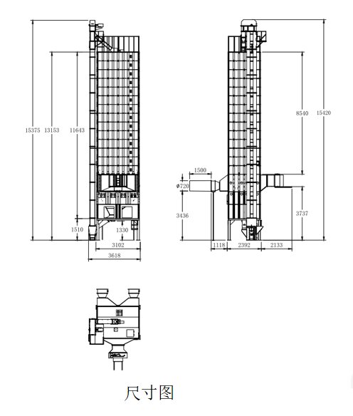
烘干机5HXJ-45A
主要参数配置:

A:主机板材采用2.0冷板,围板1.5冷板。
B:底部大料斗、流管、网板等粮食易磨损部位均采用高品质不锈钢材料。
C:提升机电机3.7kW,下搅龙电机2.2KW,离心风机7.5KW两台,拨粮轮电机750W两台,除尘风机750W,甩盘电机550W。送风风机7.5kW。总功率31.2KW。
D:承重核心传动部位轴承采用原装进口轴承。
E:控制柜采用PLC控制、断路器采用国产优质品牌、交流接触器、热继电器采用进口品牌,水分仪:国产通用水分仪。
F:畚斗皮带镇江三维

标准配置范围:

自动调风装置—大风机导风筒L=2米(含回风阀),每个项目点配一套烘干机自带爬梯。中部出料:放粮不锈钢管(L=6米)及钢丝软管(L=2米)、放料斗、上三通。


优势:
第五代智能化粮食烘干机,全球首创,完全自主研发,新一代智能粮食烘干机,实现完全进口替代;一键式智能化电控系统,操作简单。
提升机安装专用防破碎装置,有效降低破碎率。该机结构紧凑,设计先进。大干燥段设计,厚层顺逆流双通道设计,干燥热风一部分从烘干机底部逆流进风,一部分从干燥机顶部顺流进风,热风能均匀接触到所有谷粒,干燥均匀,干燥速率较高,能耗低。具有烘干均匀、破碎率低、温控可调、水分在线监测、拨粮轮电机采用变频电机等优点,该机有专用除尘风机,节能环保,工作现场排放粉尘小,自动化控制程度高,烘后谷物品质好等优点,该款烘干机工作现场排放粉尘小,对灰房除尘要求不高。




上一篇:烘干机5HXH-30C
下一篇:烘干机5HXJ-50A